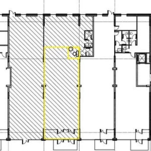
Помещение свободного назначения, 128 м²

28 160 000руб. в месяц

Характеристики

  • Общая площадь: 200 м²

Описание

Есть возможность выделить 128 м2 из большей части помещения установив перегородку.
Помещение на первой линии, первый этаж, свободная планировка. Отдельная входная группа с тамбуром.
Помещение свободного назначения в центре, первая линия. Новый дом, перспективный район. Обособленный вход; большой пешеходный и автомобильный трафик, парковка, остановка.
Технические характеристики:
1. Черновая отделка;
2. Высота потолков - 3,4 м;
3. ХВС, ГВС;
4. Предусмотрены выводы для подключения приточно-вытяжной вентиляции;
5. Электрическая мощность 53 кВт;
6. Пожарно-охранная сигнализация;
7. Индивидуальные приборы учета воды.

Возможные виды использования: Торговля, банк, медицинский центр, салон услуг связи, фитнесцентр и т.п.

Адрес

ул Монтажников 61


Сеть городских порталов: Купить квартиру в Кирово-Чепецке